大阪府八尾市二俣3丁目 中古一戸建て 2,280万円(JR関西本線志紀駅徒歩6分)の物件情報
中古一戸建て大阪府八尾市二俣3丁目
- 価格
- 2,280万円
- 面積
- 土地:80m² 建物:85.24m²
- 間取り
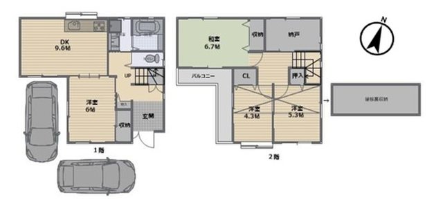
- 4DK
- 築年数
- 築21年
- 構造
- 木造
- 階数
- 2階建て
- アクセス1
- JR関西本線志紀駅徒歩6分
- 新着物件
- 駅徒歩10分以内
- 3LDK以上
- 80m²以上
- 木造住宅
- 駐車場有
- 2000万円台
- 即時引渡
- 南西向き
- 空家
- 2階建て
- 建蔽率60%
- 容積率200%
- 一方接道
- 公道に面してる
- 南東向接道
- 道路幅4.7m
- 第一種住居
物件概要
| 価格(税込) | 2,280 万円 | ||
|---|---|---|---|
| 所在地 | 大阪府八尾市二俣3丁目 | ||
| アクセス | JR関西本線志紀駅徒歩6分 | ||
| アクセス2 | - | ||
| アクセス3 | - | ||
| 間取り | 4DK | ||
| 建物構造 | 木造 | ||
| 面積(平米) | 土地:80m² 建物:85.24m² | ||
| 築年数 | 築21年 | ||
| 学区情報 | 幼稚園区: 小学校区:曙川南小学校 中学校区:曙川南中学校 |
||
| 階数 | 2階建て | ||
| 駐車場 | 有 | ||
| 建物現況 | 空家 | ||
| 設備 | 平坦地/駅まで平坦/2階建/電気/上水道公営/汚水下水道/都市ガス/全居室フローリング/クローゼット/システムキッチン/ガスコンロ/コンロ口数三口/グリル/給湯/独立洗面台/シャンプードレッサー/追い焚き/シャワー/浴室に窓 | ||
| 周辺施設 | - | ||
| 接道状況 |
一方 (南東 4.7m 公道に 9.1m 接する) - |
||
|---|---|---|---|
| 都市計画 | 市街化区域 | ||
| 建蔽/容積率 | 建ぺい率1:60% 容積率1:200% | ||
| セットバック | - | ||
| 地代 | - | ||
| 借地期間 | - | ||
| 引渡時期 | 即時 | ||
| 用途地域 | 用途地域1:第一種住居 | ||
| 取引態様 | 媒介 | ||
| 土地権利 | 所有権 | ||
| 借地条件 | - | ||
| 電話番号 | 072-920-7470 | ||
| 物件番号 | 1160 | ||
| 物件更新日 | 2025-10-24 | ||
物件周辺施設
※Google Mapに登録された場所情報で計算された距離のため、あくまで目安です。ご了承ください。
スーパー
- 見つかりませんでした
コンビニ
- 見つかりませんでした
レストラン
- 見つかりませんでした
カフェ
- 見つかりませんでした
公園
- 見つかりませんでした
学校
- 見つかりませんでした
警察
- 見つかりませんでした
郵便局
- 見つかりませんでした
図書館
- 見つかりませんでした
薬局
- 見つかりませんでした
病院
- 見つかりませんでした
歯科医
- 見つかりませんでした
獣医
- 見つかりませんでした
レンタルビデオ
- 見つかりませんでした
クリーニング
- 見つかりませんでした
GS
- 見つかりませんでした
ローンシミュレーション
-
お借入条件を入力してください 借入希望金額 ご返済期間 利率(実質年率) 万円 年 % -
毎月支払金額 - 円
■駐車2台可能